Essential Elements of a Set of Working Drawings
Samuel Stewart
What is included in a Set of Working Drawings ? Whether you are building a custom home or building from a stock house plan, at the core of the project will be the working drawings. It is important to understand what working drawings are, what they are for, and what you need and don’t need in the set of working drawings for your home.
Working drawings are integral to the construction process of your home. They are a set of drawings including all of the details and structural information required to both get a building permit and to build your home. When we put together a set of working drawings, we strive to prove what we call the “Minimum Optimum” set of house plans. A lot of architectural firms will provide 30 pages of drawings when really only 10 would suffice. By paring this down to the essentials, it will save you money and confusion. The goal of your working drawings should be to have everything you need to build the home and nothing you don’t. Let’s take a look at what a set of working drawings from Mark Stewart Home Design will and won’t have. We encourage you to click on each image to get a more detailed look at each of these plan pages.
Your Working Drawings Will Have:
Elevations

Elevations provide scaled views of the exterior of the home. This is where we include information about the roof slope, ceiling heights, exterior finishes, and more topographical information. The roof slope will be listed as a ratio of the vertical rise over a horizontal run. In the home pictured above, the roof has a slope of 4:12, or 4 inches of rise for every horizontal 12 inches. Crucial information about materials and techniques for finishing the exterior will also be given. Overhangs will be indicated where appropriate. These pages will also have additional details about what is required for the house plan to meet applicable building codes.
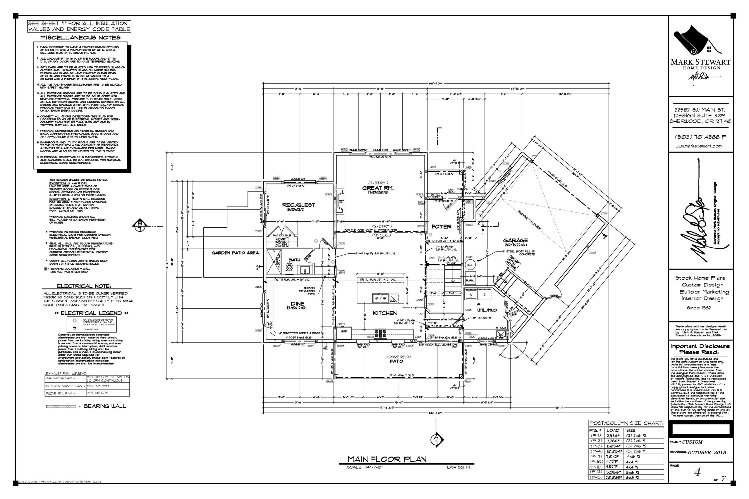
Floor Plans

The floor plans will include tons of information, and are shown as a horizontal cross section that will show all rooms, windows, and doors. Builders will be able to determine specifications for many materials, including framing components, cabinets and fixtures, doors, windows and much more. While some may choose to include separate framing sheets for floors and walls, this information is usually readily accessible via the floor plans. This is where the size of the individual rooms, location of windows, and location of things like fireplaces, appliances, kitchen islands, and plumbing fixtures will be shown. Floor plans will show all necessary information to make the sure the home meets fire life safety code (Currently the 2017 IRC). This is also the place where you will find information regarding exterior features like decks and garages.
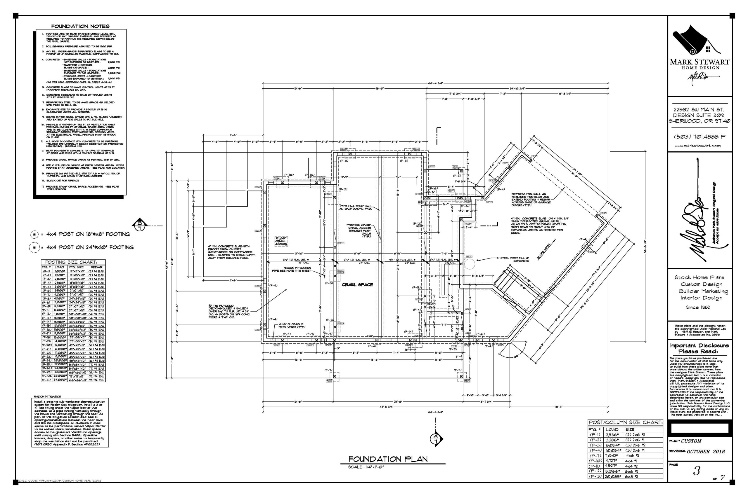
Foundation Plan

The foundation plan is where you will find all of the critical information for the structural support features. The builder will be able to determine what type and what width of foundation wall is to be used, as well as locate and determine the size of the footings. Additional concrete features will be indicated where necessary. As you can see in the house plan above, any additional information will given through very detailed notes regarding footings, point loads, construction techniques, and more.
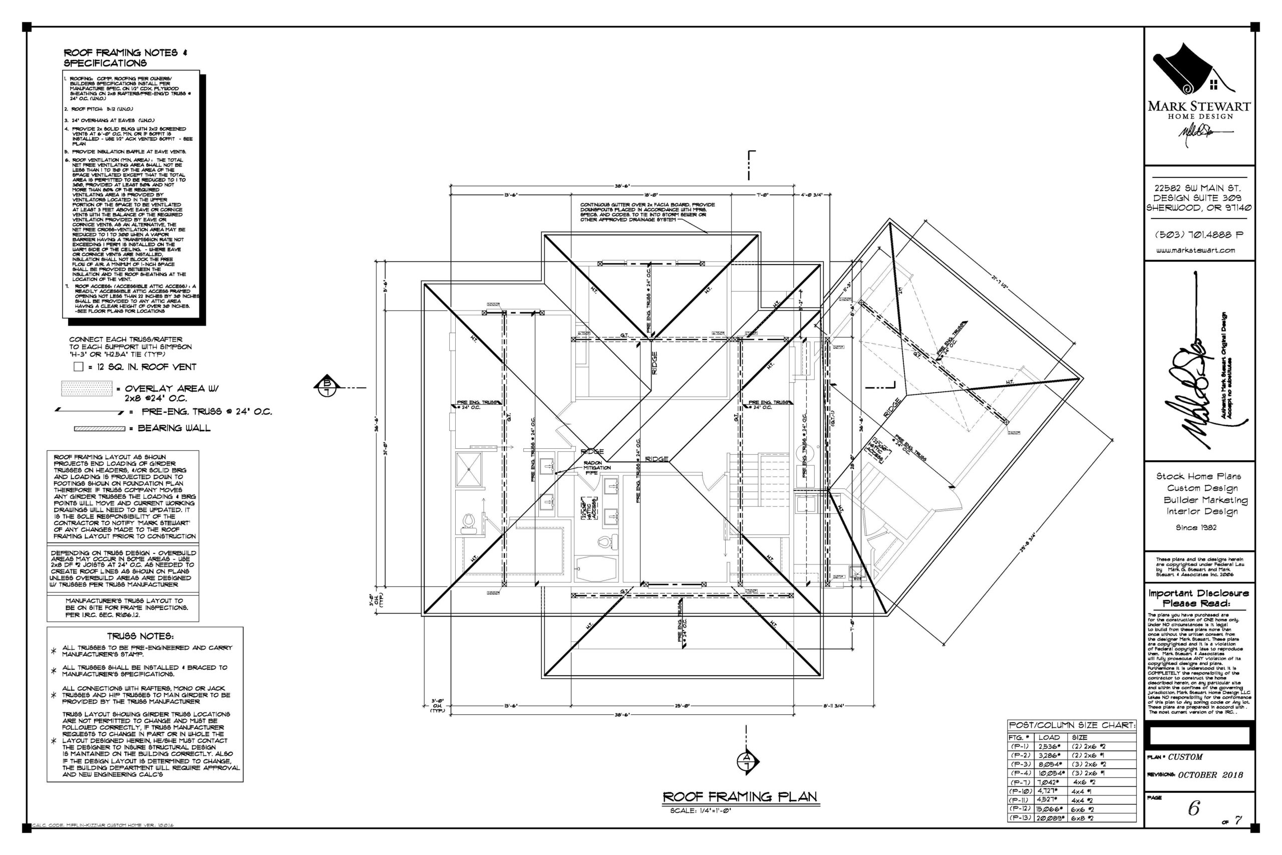
Roof Framing Plan

These will provide accurate, detailed information about the structural members used to frame the roof. It will allow the builder to determine the number and size of the necessary structural members as well as the location. The roof framing plans will show information about the size and spacing of the rafters. Overhangs, venting and connectors will also be found here.
Section Views

Section views will provide very specific information regarding various construction and design features. Shown above, you will see a few examples representative of a detailed section view. You will notice larger cross section views of the home as well as smaller, more focused drawings of features like walls and stairs. Sometimes designers will display these sections as simple outline drawings and do not include key details. Remember, the function of a set of working drawings should be to provide everything needed to keep the building to code as well as everything needed to maintain the architectural integrity of the home. It is critical that these drawings show good structural detail and include detailed, specific notes.
Electrical Plans

Electrical plans will be included that show light fixtures, outlets, smoke and carbon monoxide detectors, switches and all code required fixtures. This Electrical plan will be a guide for you. Many people use it as a starting point and customize the layout to suit their lifestyle and particular requirements. Having built homes for years, and designed thousands of homes we are careful to give you what you need without adding unnecessary additional expense or complication.
Construction and Architectural Details

Our plan cross sections show much more detail then most. That being said sometimes additional construction and/or architectural details are necessary. Some plans need very few such details and some need pages of them. We use our best judgment from our dozens of years in the business as designers and builders to give you an optimum amount of detail for each particular house plan.
Your Working Drawings Won’t Have:
Narrow Details or Minutiae

It is not necessary to include narrow and minute details about how to case each opening or finish each wall. A lot of these types of details will vary between individual builders and homeowners and are not included in the set of working drawings. While it is vital for the drawings to provide specific details, it is important to keep in mind whether or not these details are integral to the design and structural integrity of the home.
Detailed Plumbing Diagrams

In the floor plan we have shown above, you will see the accurate placement of the plumbing fixtures, but it is a misconception that you need to have detailed plumbing diagrams included in your set of working drawings. This was something that is sometimes needed in commercial buildings and was more commonly needed decades ago, but is not a requirement.
Site Plan (Only If you are having us prepare a custom design for you, or have otherwise contracted for it)

The site plan will include vital information about the lot that the home is to be built on. Your working drawings will provide information regarding easements, setbacks, property lines, and topography, as well as the footprint of the building, location of driveways, and any auxiliary buildings. The site plan also includes something called a benchmark, an elevation to which all other points of elevation will be referenced against. In the home shown above, it is marked as the top of an iron rod at 110 feet. Builders will use the benchmark as a starting point to calculate foundations and finished floor heights. Site plans also may include solar information that is crucial for orienting the home to maximize solar/energy efficiency. This is increasingly important for green building strategies and overall planning in conjunction with the rest of the house plan.
There is a lot involved in a set of working drawings, but they don’t need to be more complicated than they already are. If you have further questions about the working drawings for your new home or have any other questions, contact us and we will be happy to help.